#Industriepark-Nord soll wachsen: Stadt Leipzig und Stadt #Taucha planen neues Gewerbe- und #Industriegebiet #Merkwitz
https://www.l-iz.de/politik/region/2025/10/industriepark-nord-soll-wachsen-stadt-leipzi-stadt-taucha-neues-gewerbe-industriegebiet-merkwitz-637635
#Leipzig #Gewerbegebiet

Industriepark-Nord soll wachsen: Stadt Leipzig und Stadt Taucha planen neues Gewerbe- und Industriegebiet Merkwitz · Leipziger Zeitung
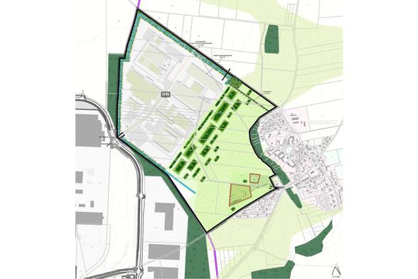
Die Städte Leipzig und Taucha planen gemeinsam ein neues Gewerbe- und Industriegebiet bei Merkwitz. Im Tauchaer Stadtanzeiger, Ausgabe November 2025, der




